云上咸宁报道(记者 朱微兮)
每个人对于家的意义都有着不一样的解读
但一定相同的是 家在心底的那份温情
小时候,爷爷家老房子的青瓦白墙
是一种古朴的温暖
今天,我们一起为心中所爱的住宅方案投上一票吧!
为弘扬鄂南地域建筑文化,规范村镇个人住宅建设,解决当前村镇建设中存在的突出问题,咸宁市城乡规划局组织编撰了《咸宁市村镇个人住宅建筑设计图集》。1月13号起,该图集在“云上咸宁”APP进行公示和网络投票。
据了解,该图集共包含村镇个人住宅设计方案80个,以鄂南民居特色风格为主题,兼顾个人建房的地域性、多样性、安全性和经济实用性等实际需求。
近一个月来,已有6000余人次通过此专栏链接,选出他们心中最美最优的设计方案。
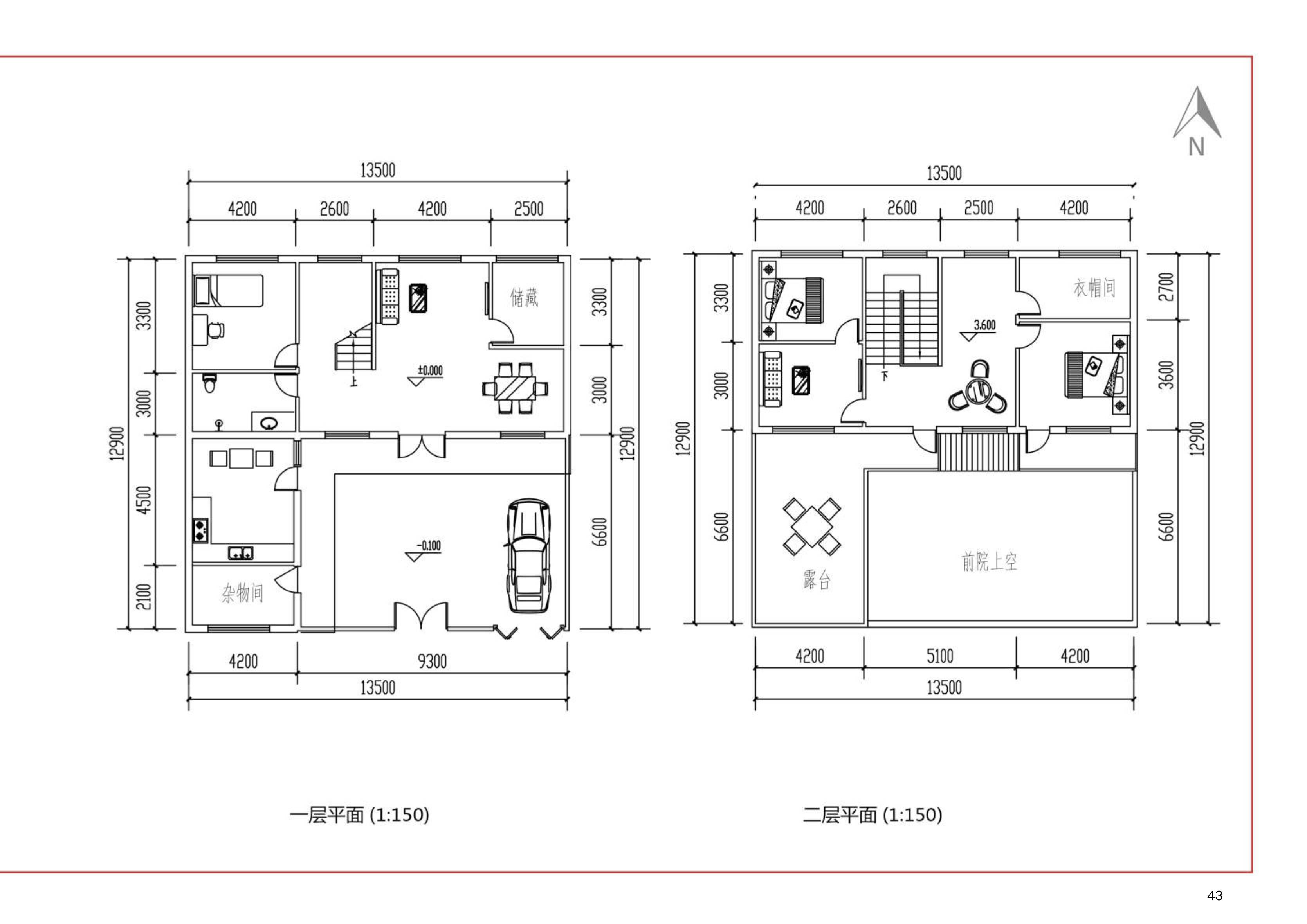
记者在“云上咸宁”看到,目前,第13号方案占据第一名的位置,获得215票。该设计方案适用于崇阳县和通城县,是两层四开间。建筑面积186平方米,为砖混结构。

据规划局测绘科科长余建平介绍,此方案以中国民间传统的灰、白作为建筑的主色调,在造型上继承了鄂南传统民居中常用的“人字山墙”、“屋顶留白边”、“墀头”等符号,并将当前鄂南居民在劳作生活中所迫切需要解决的晾晒、停放、休闲等功能安排在前院、露台等元素里。
建筑在平面设计中注重了公共交流及私密生活的双重需求,在纵向上分布不同的功能空间,房间采光通风良好,为在继承中有所发展的一个典型方案。

目前距离投票结束还有15天时间,大家可下载“云上咸宁”APP进行投票。
点开“云上咸宁”APP,可以看到头条频道和咸宁频道都开设有“咸宁村镇个人住宅建筑设计图集公示”专栏,对80个精美设计图进行了全景平面展示。
公示结束后,结合市民投票,将综合评定“最具人气的前十名设计方案”,之后所有方案将在“云上咸宁”APP进行公布,市民届时可通过“云上咸宁”APP下载设计图。
(编辑 镇冰如 邹娟)








